写字间出租160㎡
办公室图片 项目图片
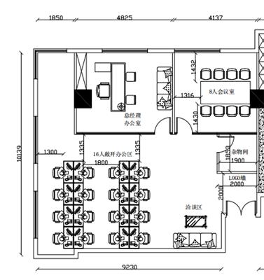
皇朝万鑫160㎡精装带家具
13万元/年 (2.23元/天/平)
含:物业费,采暖费,发票
带装修 带办公家具 公园河景
万鑫国际大厦

【-金廊五里河】沈阳和平区青年大街390号

房源简介:

吴刚:13998244277

位置及交通
查看更多
项目解读
查看更多
万鑫国际大厦图片
万鑫国际大厦

建筑年代:2008年

面积区间:98-378㎡

价格区间:900-1000元/年/㎡

总建筑面积:22.7万㎡
标准层面积:A座:1592.12㎡;C座:1302.68㎡
办公面积:A座:约3万㎡;C座:约3.4万㎡。
出租面积:约6.4万㎡
停车位:地下:立体仓储式800个,地上:约200个
层高:建筑层高:A座:3.4m;BC座:3.35m
净层高:A座:2.8m;BC座2.7m
天花:A座:写字间公共区域:铝扣板,局部石膏板造型
大堂:面积:首层5000㎡汽车入户,高度:10.2m
墙面:A座和C座:
外墙:LOW-E玻璃、进口石材、铝单板及铝塑板
电梯前室:理石,玻璃和金属镶嵌
走廊公共部分:乳胶漆
办公区域:白色乳胶漆
建筑总高及层数:A座:168.4m(顶尖高度219m)45层
BC座:149.1m;38层
空调系统:溴化锂中央空调;水源热泵风机盘管
电力供应:双回路电源,三菱1600KVA发电机
电梯及品牌:A座:
客梯数量:4部21人;品牌:OTIS;速度:6m/s;货梯:2部
C座:
客梯数量:4部18人;品牌:OTIS;速度:6m/s;货梯:1部
提交您的预约,官方专业顾问,10分钟快速响应,全程为您免费服务。
  • 确定日程

  • 顾问跟进

  • 专车接送

  • 现场实勘方
    案建议

×
免费委托找房--万鑫国际大厦
提交您的需求后,我们会在10分钟内联系您!
  • 提交需求

  • 顾问跟进

  • 专业建议/
    实勘

  • 协助入住

您也可以拨打 13998244277 直接委托需求